Большой дом по Нойферту
Большие дома отличает возможность инсоляции помещений именно в нужное время дня (например, можно устроить спальни на восточной стороне дома) и возможность компоновать объемы, которые состоят из нескольких этажей. Здесь на первый план выходит комфорт: если хозяин планирует закатывать вечеринки, можно предусмотреть танцплощадку и бар; если, хозяин предпочитает праздному образу жизни созидательно-творческий, то мастерскую и рабочий кабинет. Но на приведенных проектах видно, насколько все разумно и функционально: подсобно-хозяйственные помещения удобно расположены рядом с дополнительным входом, детские комнаты по максиму отдалены от танцплощадки, а буфетная служит буфером между кухней и столовой.
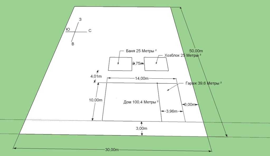
Этапы проектирования частного дома
Рассмотрим пошагово основные этапы составления проекта.
1. Анализ функциональности, размещения и использования площадей
- какие комнаты нужно обустроить и как они будут расположены относительно друг друга, чтобы в них было комфортно всем членам семьи;
- определяется количество санузлов;
- принимается решение сколько будет кладовок, тамбуров, нежилых помещений и вспомогательных комнат;
- выбирается оптимальная высота потолков;
- выбирается тип отопления и расположение коммуникаций.
Чем больше параметров будет учтено, тем будет проще спроектировать дом. Опять же, следует точно понимать, что вы хотите получить по окончании строительства. Если определенности нет, то стройку лучше отложить, так как даже опытный специалист-проектировщик в этом вопросе вам не поможет.
2. Определение внешнего вида, дизайна и этажности дома
На этом этапе нужно детально изучить все предложения на рынке, выбрать подходящий вариант с учетом пожеланий и планируемого бюджета.
3. Проведение геологоразведки участка
Для этого заказываются геодезические исследования. Это нужно, чтобы выбрать оптимальный для данной местности тип фундамента (ленточный, столбчатый, плитный и т. д.) и технологию возведения строения (монолитный, каркасный, кирпичный и т. п).
4. Выбор материалов для стен и кровли
Чаще всего, при выборе материала для постройки стен, выбирают следующие:
- кирпич, блоки, монолит;
- древесина (бревно или брус);
- каркасная технология.
Именно на этом этапе рассчитывается энергоэффективность строения, а также возможность его утепления.
Если планируется впоследствии строить пристройки, надстройки и расширять пространство дома — это также следует предусмотреть на этом этапе.
5. Подготовка проекта
На этом этапе, собственно, начинается самая большая работа: создаются чертежи, таблицы-схемы, готовится проектная документация. Для этого либо нанимается проектная организация, либо все делается своими силами.
И здесь как раз уже без опыта сложно. Потому что, как уже говорилось, при строительстве капитального частного дома, можно что-то сделать самостоятельно, например определить тип конструкций, материалы, даже рассчитать их расход и площадь помещений и комнат с высотой потолков…
Куда сложнее с другими расчетами: нагрузок, устойчивости, энергоэффективности, пожаробезопасности, а также размещение всех инженерных систем. Еще важно рассчитать их заложение на участке, исходя из его рельефа, геологических особенностей почвы, равно как грамотную разводку коммуникаций по помещениям. Поэтому мы снова рекомендуем вам не экономить на проекте и обратиться в этом вопросе к профессионалам
Поэтому мы снова рекомендуем вам не экономить на проекте и обратиться в этом вопросе к профессионалам.
6. Завершение проектно-изыскательских работ
На этом этапе частному застройщику выдается на руки согласованный пакет документов и он передается в администрацию для получения разрешения на строительство, а затем — ввода в эксплуатацию.
Нюансы получения разрешения для строительства объектов ИЖС
Смена собственника земельного участка, выделенного под ИЖС.
В связи с получением разрешений для ИЖС, у потенциальных застройщиков возникает немало вопросов. В первую очередь следует отметить, что до 2018 года действует упрощенная процедура их получения для ИЖС. Готовить проектную документацию на сегодня для этого не требуется. Сама процедура является бесплатной, никаких сборов и пошлин при выдаче разрешений не берется.
Особо стоит рассмотреть случаи, когда происходит смена собственников земельного участка или самого строения. Что делать, если после получения разрешения участок, отведенный для строительства, переходит во владение другого лица?
Многие думают, что в этом случае придется снова получать разрешительные документы или переоформлять старые. На самом деле этого делать не нужно, если его срок не истек. Таким образом, оно будет действительно для всех владельцев участка, пока не выйдут сроки.
При разделении или объединении земельных участков для ИЖС, постройка также может осуществляться на основании выданных ранее разрешений.
Гараж и нормы его расположения
При возведении гаража на своей территории также необходимо придерживаться правил для строительных работ в частном хозяйстве, и основные их принципы описаны ниже. Варианты расположения гаража могут быть следующими:
- Рядом с проезжей частью с въездом со стороны улицы;
- Под домом (подземный гараж);
- Отдельный гараж.
Регламент соблюдения строительных правил при возведении гаража на своем участке предусматривает соблюдение следующих норм:
- Гараж строится такой высоты, чтобы для соседних зданий был обеспечен свободный доступ к естественному освещению (солнечному свету);
- Нельзя строить гараж так, чтобы перекрывался подход к жилым объектам или въезд на территорию;
- От вашего гаража до границы с соседствующим участком должно быть выдержано расстояние ≥ 1 метра;
- Гараж строится на расстоянии от жилья ≥ 2 метров.
Правила возведения ограждений для обозначения границ
Условия по удалению от ограждения до строений
СНиП 30-02-97, регулирующие процессы в области расчета нормативных расстояний и безопасности, подробно расписывают не только нюансы строительных процессов под застройку, но и нормирует безопасные расстояния между ограждениями и остальными сооружениями. Этот регламент регулирует , но для разработки нормативов строительства частных зданий и сооружений региональные службы также могут его использовать.
В СНиП указанных правилах и нормативах регламентируется удаление бани от наружного ограждения, исходя из условий на строительство жилых зданий и дворовых строений. Например, удаление в 100 см от ограждения до строения любого назначения необходимо соблюдать тогда, когда границы между наделами обозначены сеткой либо ограждением решетчатого типа.
В деревнях эти правила часто не соблюдаются, и расстояние от любого ограждения до жилого здания просто не принимается во внимание, а постройки располагаются вдоль забора, который разделяет соседские наделы, или часто – вдоль воображаемой линии. Также при возведении отдельного гаража внутри надела от ограждения не его ничего не отделяет, хотя в Правилах указано, что это расстояние должно быть не менее 100 см.
Посадка зеленых насаждений от соседского ограждения. При проектировании возведения ограждения вокруг всего приусадебного надела следует принимать в расчет регламент работ на территории индивидуального строительства
При возведении забора на основе стальной решетки или сетки опорные столбы для рулонов или листов вкапывают с шагом 2-3 метра.
При проектировании возведения ограждения вокруг всего приусадебного надела следует принимать в расчет регламент работ на территории индивидуального строительства. При возведении забора на основе стальной решетки или сетки опорные столбы для рулонов или листов вкапывают с шагом 2-3 метра.
Материал забора, его высоту и протяженность можно менять только после взаимной договоренности с соседями, и лучше такой договор закрепить письменно. Тем не менее, планировать строительство на участке необходимо с учетом предписаний по размещению строений на территории надела.
Когда требуется разрешение вместо уведомления
В качестве примера можно привести следующие случаи, при которых обязательно получение разрешения на строительство объекта:
- возведение многоквартирного жилого дома,
- постройка гидротехнических сооружений,
- строительство объектов, связанных с добычей полезных ископаемых,
- проведение работ по созданию автомобильных и железных дорог, предназначенных для общего пользования,
- прочие случаи.
Как и где получить разрешение
Выбор ведомства, в которое следует обращаться для получения такого документа зависит от вида объекта, строительство которого планируется. Здесь возможны следующие варианты:
- органы местной власти, находящиеся на территории расположения земельного участка (в большинстве случаев),
- организация «Росатом» (по объектам в области атомной энергии),
- «Роскосмос» (при строительстве/реконструкции построек в области космической инфраструктуры),
- Минстрой РФ (при возведении объекта на территории двух и более регионов),
- иные уполномоченные органы государственной власти.
В целом, процедура получения разрешения на строительство включает в себя следующие шаги:
- Подготовка заявления согласно утвержденной форме.
- Сбор документов.
- Подача полного пакета бумаг в государственное ведомство, уполномоченное выдавать разрешения на строительство. Сделать это можно через МФЦ.
- Далее нужно дождаться окончания этапа проверки представленных документов. Если все будет в порядке, заявителю выдадут разрешение.
Список документов
Для получения права приступить к строительству запланированного объекта застройщик должен к своему заявлению приложить следующий список документов (п. 7 ст. 51 ГрК РФ):
- документы, подтверждающие право собственности на землю,
- градостроительный план участка,
- результаты инженерных изысканий, включающие пояснительную записку, план территории и т.д.,
- положительное заключение, подготовленное по итогу проведения экспертизы проектной документации. Причем, если она была проведена негосударственной организацией, то также нужно приложить свидетельство об ее аккредитации (копию),
- бумага, дающая право на отклонение от установленных параметров разрешенного строительства,
- согласие всех лиц на проведение реконструкции объекта, в собственность которых он входит,
- документы на объекты культурного наследия, предусмотренные законом,
- иные бумаги.
Стоит отметить, что перечисленные выше документы в полном составе требуются не в каждом случае, а исходя из конкретной ситуации и особенностей будущего строительства.
Сколько действует разрешение на строительство дома
Согласно п. 19 ст. 51 ГрК РФ такой документ выдается на период времени, предусмотренный в рамках проекта строительства. При этом по заявлению застройщика разрешение может выдаваться для проведения только отдельных этапов.
Подробнее о том, какой срок действия разрешения, читайте в нашей статье.
Сроки
В соответствии с п. 11 ст. 51 ГрК РФ проверка представленных документов и выдача разрешения на возведение капитального объекта составляет 5 рабочих дней. Данный срок исчисляется с дня подачи документов. В крайнем случае можно продлить разрешение на срок до 3-х лет.

Сопроводительные документы для получения разрешения на строительство
При ответе на вопрос, какие документы нужны для разрешения на строительство, можно воспользоваться Градостроительным кодексом. Процесс займет немало времени. Согласно 51 статье, требуются:
- правоустанавливающие документы;
- проектная документация;
- документы, устанавливающие личность заявителя;
- заявление, которое пишется в органе местного самоуправления по образцу уже при обращении.
Правоустанавливающие документы
Первыми в перечне необходимых бумаг идут правоустанавливающие документы. Основным в этом случае является свидетельство о государственной регистрации права. Вместо него может быть договор завещания, дарения или купли-продажи. Первый документ получают через портал государственных и муниципальных услуг или при личном посещении Росреестра. Для оформления свидетельства потребуется определенный пакет документов:
- Подтверждающие личность каждой стороны сделки;
- свидетельство о наследстве, судебное решение или другой документ, служащий основанием для регистрации права собственности;
- кредитный договор при покупке объекта в ипотеку;
- полученное ранее свидетельство о регистрации;
- документ об оплате госпошлины;
- кадастровый паспорт объекта, если ранее он не был предоставлен в Росреестр;
- заявление о регистрации.
Проектная документация
Вторым шагом в сборе всех необходимых для разрешения бумаг будет подготовка проектной документации. Согласно части 7 стать 51 ГК РФ, ней относятся:
- пояснительная записка;
- копию схемы планировки земельного участка, где планируется возведение, с указанием размещения объекта капитального строительства, проходов и подъездов к нему;
- копию схемы планировочной организации земельного участка с указанием красных линий;
- архитектурные решения;
- проект организации работ по демонтажу или сносу;
- сводный план инженерно-технического обеспечения, на котором отмечены места подключения;
- проект организации строительства;
- описание доступности для инвалидов социального объекта;
- заключение экспертизы проектной документации;
- разрешение на отклонение некоторых параметров;
- согласие правообладателей на реконструкцию.
Это касается объектов капитального строительства. Их застройщик составляет самостоятельно либо обращается в специальные организации, которые сделают это за определенную плату. Чтобы получить разрешение на ИЖС, из проектной документации потребуется только:
- градостроительный план земельного участка, выданный в течение последних трех лет до дня написания заявления на разрешение;
- схема планировочной организации земельного участка, на котором обозначены места нахождения объектов ИЖС;
- описание того, как объект будет выглядеть внешне, если строительство предполагается в области исторических поселений.
Заключение государственной экспертизы
Одним из требуемых документов является положительное заключение государственной экспертизы проектной документации. Она проводится местными органами исполнительной власти, даже в случае загородного дома. Туда необходимо обратиться с пакетом проектной документации, указанной выше. Негосударственная экспертиза может проводиться в любом регионе, но вместе с заключением затем нужно будет предоставить копию свидетельства об аккредитации юридического лица, оформившего бумагу.
Градостроительный план участка
Данный документ должен быть выдан не раньше 3 лет до дня, когда застройщиком подаются требуемые бумаги на получение разрешения. План можно взять в отделе Градостроительного развития и архитектуры Администрации города. Срок предоставления составляет 3 месяца (согласно статье 46 ГК РФ). Никакая плата за такую услугу не взимается. Для получения плана необходимы следующие документы:
- топографическая съемка участка с отметкой подземных, наземных и надземных конструкций;
- подтверждающие личность заявителя;
- написанное застройщиком заявление на выдачу плана;
- Кадастровый и технический паспорт объекта.
Проект и разрешительная документация
Начинать строить дом нужно с изготовления проекта
Хотите знать, с чего начать строить дом? Конечно же, с изготовления проекта. При этом у вас есть несколько путей:
- Вы можете купить готовый проект. Он обойдётся намного дешевле.
- Заказать разработку индивидуального проекта у архитектора. Проект, сделанный на заказ, стоит в несколько раз дороже.
- Для строительства собственного небольшого дома проект можно изготовить самостоятельно.
Также отвечая на вопрос, с чего начать строительство на участке, нельзя не упомянуть о получении разрешения на выполнение этих работ. Для этого в государственные органы, находящиеся по месту вашего земельного участка, вам нужно представить следующие документы:
- Заявление, на основании которого вы получите разрешение на строительство дома.
- Документы, которые подтверждают ваше право на владение земельным участком. Это может быть договор купли-продажи или договор аренды.
- Кадастровый план и паспорт участка.
- Утверждённый в органах архитектуры проект дома.
- Акт об установлении границ участка в натуре и разбивке осей строения и красных линий.
- Постановление о разрешении строительства, выданное главой администрации.
Недостатки отсутствия проекта
Стройка без проекта позволяет сэкономить, но с огромной вероятностью могут возникнуть трудности, например, такие как:
- необходимость постоянного контроля проведения работ в связи с отсутствием у строительной бригады проекта с прописанными местами расположения дверей, окон и других важных элементов здания;
- недобросовестность строителей при отсутствии должного уровня знаний заказчика может проявиться в затягивании сроков стройки, несоблюдении пропорций и качественных показателей укладки стройматериалов;
- разночтения между заказчиком и строителями в понимании того, как должны выглядеть те или иные конструктивные объекты дома;
- отсутствие гарантий качества строительства при самостоятельном выполнении работ в связи с упущением важных конструктивных особенностей, а также незнанием и несоблюдением строительных нормативов чревато нарушением норм безопасности проживания в здании;
- невозможность проложить коммуникации после возведения дома.
Представьте себе: поскольку чертежа нет, строители ненароком могут положить лишний кирпич в месте, где должна проходить вентиляционная шахта. А перекрытие между этажами не должно быть возведено в месте, где в плане предусмотрена лестница. Такие «случайности» могут стать фатальными и не подлежать исправлению.
Лишь единицы получают хорошие результаты при возведении собственного дома без проекта, и добиваются этого благодаря наличию знаний, наличию свободного времени и консультированию с опытными специалистами. В большинстве случаев такие здания становятся весьма посредственным жильем с уймой недостатков и неудобств.
Можно ли получить разрешение на строительство при отсутствии проектной документации?
Согласно статьи 49 Градостроительного кодекса РФ, проектная декларация не нужна для следующих объектов капитального строительства:
- Отдельно стоящие жилые дома с количеством этажей не более 3-х, предназначенные для проживания одной семьи (объекты индивидуального жилищного строительства);
- Жилые дома с количеством не более 3-х этажей, состоящие из нескольких блоков, количество которых не превышает 10 и каждый из которых предназначен для проживания одной семьи, имеет общую стену (общие стены) без проемов с соседним блоком или соседними блоками, расположен на отдельном земельном участке и имеет выход на территорию общего пользования (жилые дома блокированной застройки);
- Многоквартирные дома с количеством этажей не более 3-х, состоящие из одной или нескольких блок-секций, количество которых не превышает 4, в каждой из которых находятся несколько квартир и помещения общего пользования и каждая из которых имеет отдельный подъезд с выходом на территорию общего пользования.
Таким образом, мы видим, что даже если на частный дом нет проекта, проблем с получением разрешения на строительства не будет. Единственное, что вам необходимо — это заказать в проектной организации или отделе местного архитектурного бюро схему планировочной организации земельного участка, а также указать в бумагах предполагаемые размеры и площадь будущего дома.
Хорошо. С этим разобрались. Но теперь другой вопрос — а может и вовсе можно обойтись, без проекта, документации, «всей этой возни с кипой бумаг». Реально ли построить и оформить дом без проекта?
Но как тогда оформить такой дом? Ведь по закону жить в нем можно будет лишь только после ввода в эксплуатацию компетентными органами исполнительной власти. Рассмотрим, более предметно, что для этого нужно.
Разрешение на строительство без проектной документации
Следующий вопрос: возможно ли получить получение разрешение на строительство при отсутствии проектной документации. Ответ содержится в ст. 51 ГК РФ:
Пункт 1
– разрешение на строительство представляет собой документ, подтверждающий соответствие проектной документации требованиям градостроительного плана земельного участка и дающий застройщику право осуществлять строительство, реконструкцию объектов капитального строительства, а также их капитальный ремонт, за исключением случаев, предусмотренных настоящим Кодексом.
Пункт 9
– в целях строительства, реконструкции, капитального ремонта объекта индивидуального жилищного строительства застройщик направляет в уполномоченные на выдачу разрешений на строительство в соответствии с частями 4-6 настоящей статьи федеральный орган исполнительной власти, орган исполнительной власти субъекта Российской Федерации или орган местного самоуправления заявление о выдаче разрешения на строительство. К указанному заявлению прилагаются следующие документы:
Пункт 10
– не допускается требовать иные документы для получения разрешения на строительство, за исключением указанных в частях 7 и 9 настоящей статьи документов.
Пункт 11
– Уполномоченные на выдачу разрешений на строительство федеральный орган исполнительной власти, орган исполнительной власти субъекта Российской Федерации или орган местного самоуправления в течение десяти дней со дня получения заявления о выдаче разрешения на строительство.
Пункт 14
– отказ в выдаче разрешения на строительство может быть оспорен застройщиком в судебном порядке.
План расположения построек на участке
Пункт 15
– Выдача разрешения на строительство осуществляется уполномоченными на выдачу разрешения на строительство федеральным органом исполнительной власти, органом исполнительной власти субъекта Российской Федерации или органом местного самоуправления без взимания платы.
Пункт 18
– Застройщик в течение десяти дней со дня получения разрешения на строительство обязан безвозмездно передать в федеральный орган исполнительной власти, орган исполнительной власти субъекта Российской Федерации или орган местного самоуправления, выдавшие разрешение на строительство, сведения о площади, о высоте и об этажности планируемого объекта капитального строительства, о сетях инженерно-технического обеспечения, один экземпляр копии результатов инженерных изысканий и по одному экземпляру копий разделов проектной документации, предусмотренных пунктами 2, 8-10 части 12 статьи 48 настоящего Кодекса, или один экземпляр копии схемы планировочной организации земельного участка с обозначением места размещения объекта индивидуального жилищного строительства для размещения в информационной системе обеспечения градостроительной деятельности.
Пункт 19
– Разрешение на строительство выдается на срок, предусмотренный проектом организации строительства объекта капитального строительства. Разрешение на индивидуальное жилищное строительство выдается на десять лет.
Подводя итоги, резюмируем следующее: при строительстве индивидуального дома на собственном участке разрешение на строительство не требуется. Но в отделе местного архитектурного бюро или в проектной организации необходимо будет заказать схему планировочной организации земельного участка, которая представляет собой план вашего участка с указанием:
- границ участка;
- красной линии застройки;
- границы допустимых зон строительства жилых зданий;
- допустимых зон размещения хозяйственных построек и так далее.
Предполагаемые габаритные размеры будущего дома необходимо указать самому.
Проект дома (ИЖС)
Конструктивный раздел проекта коттеджа
Конструктивный раздел в составе проекта строительства частного дома состоит из общих данных, схем расположения элементов фундамента, лестниц, перекрытий, стропильной конструкции, детальных чертежей отдельных узлов, спецификации изделий и материалов.
Обратить ваше внимание на чертежи деталировочных планов монтажа, которые также входят в данный раздел. Данные чертежи позволят вам поэлементно ознакомиться с конструкцией фундамента, перекрытий, стропильной системы, полов и пр
Здесь будут указаны схемы раскладки бетонных блоков фундаментов, балок и плит перекрытий, участков монолитного бетонирования с элементами армирования и др.
Что касается наиболее сложных узлов примыкания конструктивных элементов друг, к другу и деталей, то они показаны на чертежах отдельно. Здесь же вы найдете основные размеры и привязки по осям.
Какими нормативными документами регулируется вопрос
Градостроительный кодекс – документ, обязательный для городских и сельских поселений, предусматривающий необходимость получения разрешительных документов перед началом строительства. С помощью разрешения, полученного в местных органах власти, можно не только определить правильную удаленность.
Если невозможно соблюсти дистанцию при постройке из-за небольших размеров земельных наделов, допускается отступление и не в соответствии с требованиями.
Забор между соседями
Ведь при его возведении учитывается не только расстояние до соседнего забора, но и дистанция до других сооружений и строений. Тем более что в ч. 17 статьи 51 Градостроительного кодекса предусмотрено обязательное, согласно существующему закону, размежевание территорий кадастровыми работниками и обозначение границы между владениями.
После того как построен забор, начинается возведение построек на основе разрешительных документов, утвержденного плана-схемы, на котором должны быть учтены все существующие правила при строительстве частного дома:
- Разработка проектов ИЖС осуществляется по СНиП 2.08.01-89 и СП 131.13330.2012 (актуализированная редакция СНиП II-3-79).
- СНиП 30-02-97 регламентирует расположение на плане земельного участка, а впоследствии, при размещении, нормы разрешенного удаления.
- Правила землепользования и застройки предусматривают, как необходимо размещать жилые, хозяйственные строения и зеленые насаждения друг от друга.
- СП 42.13330.2011 и СП 53.13330.2011 актуальны при строительстве дачного домика, хозпостроек и др. (в 2019-2020 годах используется новая терминология – садовые дома), на садоводческих участках, в СНТ.
- ГК РФ от 13.03.2001 г. № 17 (п. 7.4) лимитирует расстояние до границ соседского владения, как высоту хозпостройки или других построек, для предотвращения затененности чужой собственности.
- В КоАП есть отдельная статья, предусматривающая административную финансовую ответственность за нарушение норм, которые должны быть соблюдены, рассматривая их игнорирование как препятствие собственнику в осуществлении его прав.
- СанПиН требует выполнения санитарно-гигиенических норм, чтобы избежать опасности заражения или загрязнения на своем собственном и соседском землевладениях.
- Противопожарные расстояния тоже разработаны МЧС, и пожарные требования определяются характером материала постройки, его огнеустойчивости, способности к быстрому возгоранию.
- Органы местного самоуправления, правление СНТ в отдельном населенном пункте, районе, для территорий садоводческих товариществ, дачных участков, находящихся составе кооператива, иногда принимают отдельные решения.
- Для малоэтажек существует еще СП 30-102-99, известный как «Планировка и дальнейшая застройка площади малогабаритного строительства».
Две соседки
Москва ориентируется на Нормы и правила проектирования планировки и застройки города (МСК-МГСН 1.01-99, для Московской области есть ТСН 30-303-2000, а у Санкт-Петербурга – свои, разработанные с учетом специфики). С помощью этих установленных требований и осуществляется застройка территорий в обеих столицах.
Его строят с учетом всех действующих нормативов, ориентируясь на тип сооружения, местность, территориальную принадлежность и удаленность от любых строений, которыми пестрит участок соседа. При этом нужно учитывать и расстояние от улицы.
Монтаж изгороди
Только в одном случае можно безнаказанно делать минимальные отступы – если с тыльной стороны наблюдается отсутствие владений соседа, дороги, коммуникаций или сооружений с дополнительными условиями удаленности постройки.
Строительство индивидуального жилого дома
После получения согласованной проектной документации, гражданин, которому был выделен участок для строительства дома, может приступить к строительству жилого дома.
Осуществлять строительство можно своими силами или с привлечением строительной организации.
Строительство дома своими силами (хозяйственным способом)
Данный способ предполагает под собой строительство дома силами самого гражданина, а также силами привлеченных им так называемых «шабашников». В последнем случае в большинстве своем такие работники привлекаются по устной договоренности. В этом случае требования к качеству и срокам выполнения работ предъявлять довольно сложно. В то же время никто не запрещает заключить с такими работниками договор подряда. При этом гражданин будет иметь большую защищенность в случае возникновения спорных ситуаций. Подобных договоров можно заключать несколько и каждый на отдельные виды работ. В связи с тем, что довольно часто такие работники не слишком благонадежны, при заключении договора или при устной договоренности оплату работ лучше предусмотреть после их выполнения.
Недостатком подобного способа строительства является большая вероятность того, что строительство дома будет произведено не качественно. Несмотря на то, что на сегодняшний момент строительная деятельность не лицензируется, она является сложным технологическим процессом и ее осуществление без необходимых знаний может привести к непредвиденным последствиям.
Строительство дома строительной фирмой
Строительство дома в данном случае производится путем заключения договора строительного подряда между гражданином и строительной организацией. Выбирая фирму, с которой будет заключен такой договор, необходимо убедиться, что строительные работы при этом будут выполнены качественно. Таким подтверждением может являться сертификат соответствия. Такой сертификат должны получить организации в случае, если они занимаются выполнением определенных видов работ Возведение монолитных бетонных и железобетонных конструкций.Заполнение оконных и дверных проемов.Монтаж внутренних инженерных систем зданий и сооружений.Монтаж деревянных конструкций.Монтаж каменных и армокаменных конструкций.Монтаж легких ограждающих конструкций.Монтаж наружных сетей и сооружений.Монтаж сборных бетонных и железобетонных конструкций.Монтаж стальных конструкций.Устройство антикоррозионных покрытий строительных конструкций зданий и сооружений.Устройство дорожных покрытий пешеходных зон из тротуарных плит.Устройство изоляционных покрытий.Устройство кровли.Устройство оснований, фундаментов зданий и сооружений.Устройство тепловой изоляции ограждающих конструкций зданий и сооружений.(Перечень строительных материалов и изделий (независимо от страны происхождения), работ в строительстве, подлежащих подтверждению соответствия существенным требованиям безопасности технического регламента Республики Беларусь «здания и сооружения, строительные материалы и изделия. безопасность» (приложение к техническому регламенту Республики Беларусь «Здания и сооружения, строительные материалы и изделия. Безопасность»)), без которых строительство дома невозможно. Кроме этого можно попросить у строительной фирмы перечень построенных ею объектов и таким образом проверить наличие у нее опыта в этой сфере. Также, не смотря на то, что в настоящий момент строительная деятельность не лицензируется, можно попросить лицензию на то время когда она была еще необходима. Если такая лицензия имелась, то это уже определенным образом подтверждает надежность выбранной строительной фирмы.
Стоимость и сроки строительства
При заключении договора строительного подряда необходимо будет определить из чьих материалов будет вестись строительство. По общему правилу такое строительство ведется подрядчиком из его материалов, его силами и средствами. статья 658 Гражданского кодекса Республики Беларусь Как правило в этом случае необходимо будет оплачивать аванс на стоимость таких материалов. В то же время если гражданин желает, что бы строительство велось (полностью или частично) из его материалов это необходимо указать в договоре.
Кроме материалов в стоимость строительства будут также входить и сами работы по строительству.
Сроки строительства могут быть разделены на этапы (возведение фундамента, стен, внутренняя отделка и т.д.). В соответствии с этим разделяется и оплата строительства.
Подведение итогов
Определяя, сколько комнат должно быть в частном доме, проектировщики часто используют формулу: количество постоянных жильцов +1. Это грубая формула, но ее легко адаптировать под конкретную семью: есть или планируются маленькие дети – через несколько лет им понадобятся отдельные комнаты. Подолгу гостят родственники или друзья – им нужно где-то спать. Хозяин работает дома – ему необходим кабинет. Хозяйка помешана на спорте — лучше выделить ей для этого отдельную комнату. Родителям уже трудно жить одним – надо предусмотреть для них удобное помещение с близким санузлом.
Планируя помещения будущего дома, надо представить себе свою жизнь через 10-15лет.
Также необходимо придерживать следующих размеров помещений (меньше уже некомфортно).



























































